Chice 2-Zimmerwohnung in modernem Stadthaus mit Süd-Loggia!

33330 Gütersloh
Verkauft
Chice 2-Zimmerwohnung in modernem Stadthaus mit Süd-Loggia!
33330 Gütersloh

Beschreibung

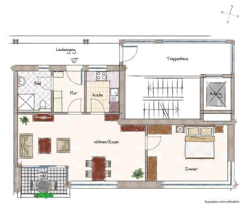
Diese attraktive 2-Zimmer-Wohnung befindet sich im 1. Obergeschoss eines modernen Wohn- und Geschäftshauses in zentraler Lage. Mit ihrer durchdachten Grundrissgestaltung und einer sonnigen Süd-Loggia bietet sie ein ideales Zuhause für Singles oder Paare, die Wert auf Komfort, Licht und städtisches Wohnen legen.

Auf ca. 57 m² Wohnfläche präsentiert sich die Wohnung hell und einladend. Der großzügige Wohn- und Essbereich mit bodentiefen Fenstern schafft eine angenehme Wohnatmosphäre und ermöglicht den direkten Zugang zur überdachten Loggia – perfekt zum Entspannen im Freien.

Die separate Küche ist mit einer Einbauküche in zeitlosem Weiß ausgestattet und fügt sich harmonisch in das Gesamtbild der Wohnung ein.

Das helle Schlafzimmer überzeugt mit einem großen Eckfenster, das für ein luftiges Raumgefühl und eine freundliche Stimmung sorgt.

Das moderne Tageslichtbad ist mit einer Dusche und einem praktischen Badezimmerschrank ausgestattet und rundet das stimmige Wohnkonzept ab.

Komfortabel erreichen Sie die Wohnung über den Aufzug, der bis in das Kellergeschoss führt. Dort stehen Ihnen ein separater Vorratskeller sowie ein gemeinschaftlicher Waschraum zur Verfügung.

Dank der gefragten Lage, der hochwertigen Ausstattung und des modernen Zuschnitts eignet sich diese Immobilie sowohl als stilvolles Eigenheim als auch als attraktive Kapitalanlage.

Die Wohnung liegt mitten im Herzen von Gütersloh.

Einkaufsmöglichkeiten, Restaurants, Cafés, Ärzte sowie der Bahnhof sind fußläufig erreichbar.

Auch Arbeitgeber wie Bertelsmann und Miele befinden sich in unmittelbarer Nähe.
Die optimale Anbindung an den öffentlichen Nahverkehr ist ebenfalls gewährleistet.

– Weiße Zimmertüren
– Parkett im Wohnbereich
– hellgraue Natursteinfliesen im Eingangsbereich und Bad
– Teppichboden im Schlafraum
– Separater Vorratskeller, gemeinsamer Waschkeller
– Ebenerdiger Fahrradraum
– Einbauküche mit E-Geräten (ohne Spülmaschine)
– Gegensprechanlage mit Kamera
– Sat.-Anlage

Die in diesem Exposé und etwaigen Anlagen und Plänen enthaltenen Angaben und Objektbeschreibungen beruhen ausschließlich auf Angaben des Vermieters bzw. Auftraggebers oder sonstiger Dritter.

Der Makler hat deren sachliche Richtigkeit nicht überprüft. Für die Richtigkeit und Vollständigkeit der Angaben übernimmt der Makler daher keine Haftung., Die käuferseitige Vermittlungsgebühr beträgt 3,57% inkl. MwSt., vom Kaufpreis, fällig nach Kaufabschluss.
Wir sind in gleicher Höhe provisionspflichtig für die Verkäuferseite tätig.

Details

Objektnr.
2241
Anzahl Schlafzimmer
1
Anzahl Räume
2
Anzahl Badezimmer
1
Wohnfläche
57 m²
Baujahr
2006
Aktualisiert am Februar 5, 2026 beim 10:53 a.m.

Grundrisse

Grundriss

Beschreibung:

Energieausweis

  • Energie-Effizienzklasse: D
  • Endenergieverbrauch: 109,60 kWh/(m²*a)
  • Energieausweistyp: Verbrauch
  • Heizungsart / Wesentliche Energieträger: Zentralheizung, Gas
  • Gültig bis: 21.04.2026
  • A+
  • A
  • B
  • C
  • 109,60 kWh/(m²*a) | Energie-Effizienzklasse D
    D
  • E
  • F
  • G
  • H
Die in diesem Exposé und etwaigen Anlagen und Plänen enthaltenen Angaben und Objektbeschreibungen beruhen ausschließlich auf Angaben des Verkäufers bzw. Auftraggebers oder sonstiger Dritter. Der Makler hat deren sachliche Richtigkeit nicht überprüft. Für die Richtigkeit und Vollständigkeit der Angaben übernimmt der Makler daher keine Haftung. Eine Weitergabe des Angebotes an Dritte verpflichtet zur Zahlung der Vermittlungsgebühr.

Compare listings

Vergleichen